Обяви За нас Контакти
Продава КЪЩА
град Варна, к.к. Чайка
830 000 €
1 623 338.90 лв.

(2 975 €, 5 818.59 лв./m2)
Цената е с включено ДДС
История на цената
Коригирана в 10:16 на 3 ноември, 2025 год.
Обявата е посетена 827 пъти.
Площ:
279 m2
Двор:
440 m2
Етаж:
3
Газ:
НЕ
ТEЦ:
НЕ
Строителство:
Тухла, 2026 г.

Описание на имота:


Грийн Хоум предлага невероятна луксозна 3 ЕТАЖНА къща с МОРСКА ПАНОРАМА ОТ КОТА 0 в м-т Кабакум, гр. Варна!!!

РЗП 279кв.м

Двор 440кв.м

Къщата е със следното разпределение:

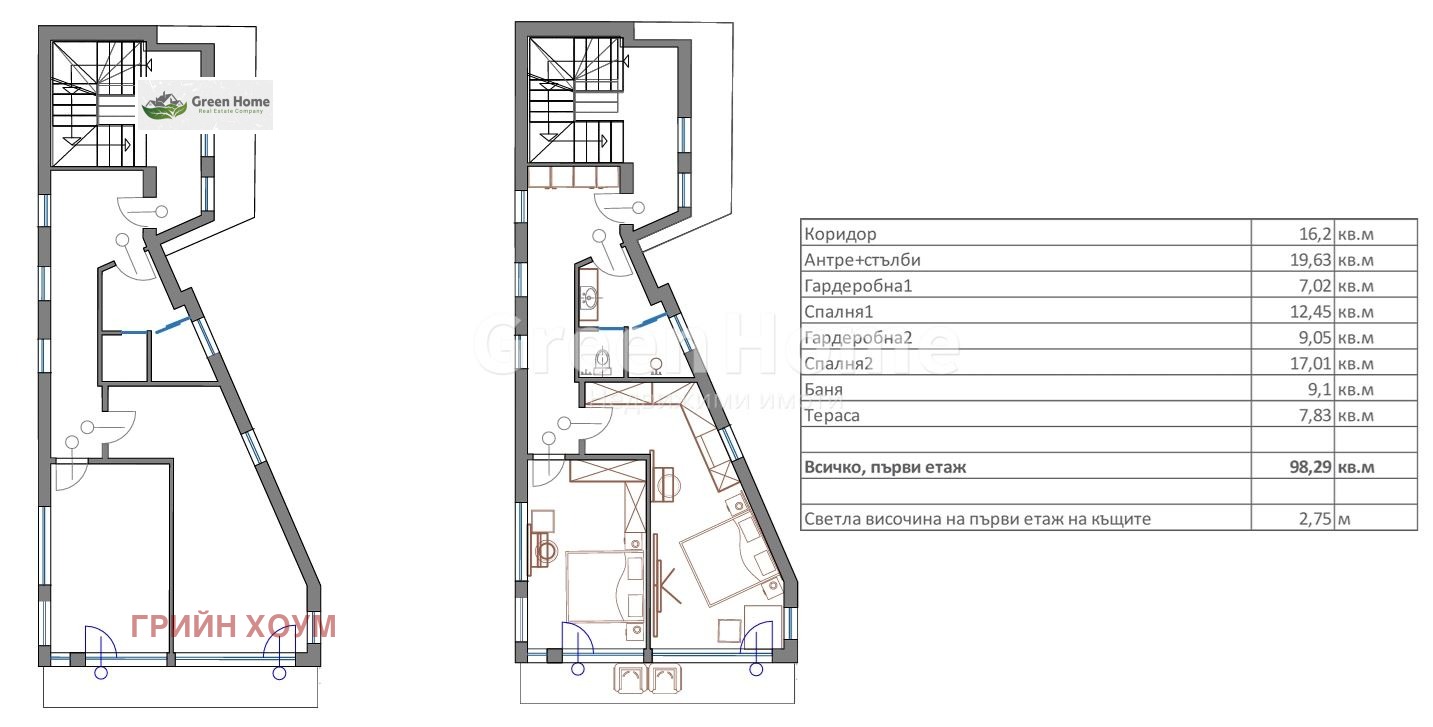
ЕТАЖ 1:
дневна зона с кухненска част и трапезария - 51кв.м
коридор
антре
гардеробна
WC + перално помещение
веранда с гледка към морето
ЕТАЖ 2:
спалня 1 с гардеробна 19,5кв.м
спалня 2 с гардеробна 26кв.м
баня с тоалетна 9,1кв.м
тоалетна
антре
тераса с изглед към морето
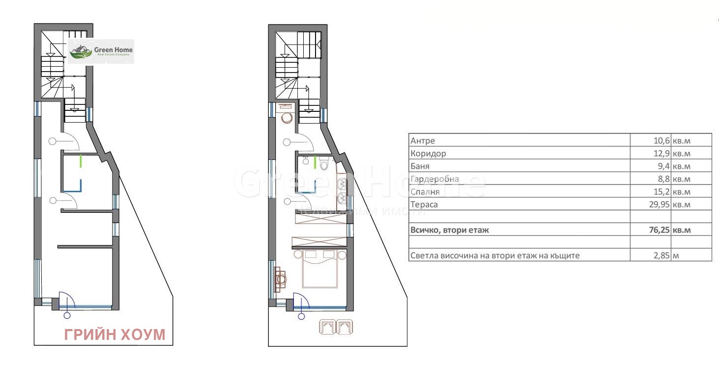
ЕТАЖ 3:
спалня с гардеробна 24кв.м
баня с тоалетна 9,4кв.м
антре
голяма тераса с изглед към морето

Разполага с ДВЕ паркоместа.

Къщата ще бъде изградена със строителни материали от най-висок клас:
Висок клас алуминиева и PVC дограма SCHUCO дограма с троен стьклопакет, двукамерна с Аргон, осигуряваща отлична звуко- и топлоизолация, за по-тих и уютен дом;
Подсилена хидроизолация в основите за дълготрайна защита от влага и устойчивост;
Висок клас топлоизолация, която поддържа къщата топла през зимата и прохладна през лятото

Може да бъде завършена по БДС или до КЛЮЧ, както и разпределението може да бъде променено, според вашите нужди. Разполагаме и с готов идеен проект за интериорното обзавеждане.

Имота е разположен на много тихо и спокойно място, с изцяло асфалтов достъп, в близост до главен път, автобусна спирка, плажа и морето, магазини и ресторанти.

ГЪВКАВА СХЕМА НА ПЛАЩАНЕ!

Къщата е проектирана така, че да отговори на високите ВИ изисквания!
Виж всички обяви в greenhomebg.bazar.bg или тук
Особености
Тухла
В строеж
С паркинг
Контрол на достъпа
За контакт:
0896835063
Брокер:
Радослава Жекова
0896835063
Офис: Гр.Варна ул.Георги Сава Раковски 4А
Още оферти от брокера: Продава | Дава под наем | Купува | Наема
Агенция:
ГРИЙН ХОУМ
0883497577
ГРИЙН ХОУМ logo
В imot.bg от 2023 г.
greenhomebg.imot.bg
Адрес:
област Варна, гр. Варна, гр. Варна бул.Сливница 166А
ИЗПРАТИ ЗАПИТВАНЕ
ИЗПРАТИ ЗАПИТВАНЕТО

Продава КЪЩА
град Варна, к.к. Чайка
Обява: 1j174109702586946

830 000 €
1 623 338.90 лв.
История на цената
(2 975 €, 5 818.59 лв./m2)

Цената е с включено ДДС
ЗАПАЗИ ОБЯВАТА

Местоположение: град Варна, к.к. Чайка

Допълнителни данни за имотите в района и сравнение с други райони: Търсене в АРХИВ 2013 - 2025 г.











Добави/редактирай
вид имот и район
*Средните цени са определени чрез медиана стойност.